W swoim doświadczeniu związanym z rysunkiem technicznym i inwentaryzacją architektoniczną mam kilkanaście obiektów o łącznej powierzchni ponad 10,000 m².
Wśród zróżnicowanych typów obiektów, które inwentaryzowałem i dokumentowałem w technologiach CAD i BIM, można odnaleźć: zabytkowy pałac, hotel z lat 70-tych, schroniska i stacje ratownictwa górskiego, opuszczoną willę z początku XX wieku, a także prywatne mieszkania, łazienki i lokale użytkowe.
Inwentaryzacja stacji ratownictwa górskiego
dla Grupy Beskidzkiej GOPR, 2011
(5 budynków o całkowitej powierzchni 2,145 m²)
(uzupełnione o projekt przekształcenia i rozbudowy obiektów)
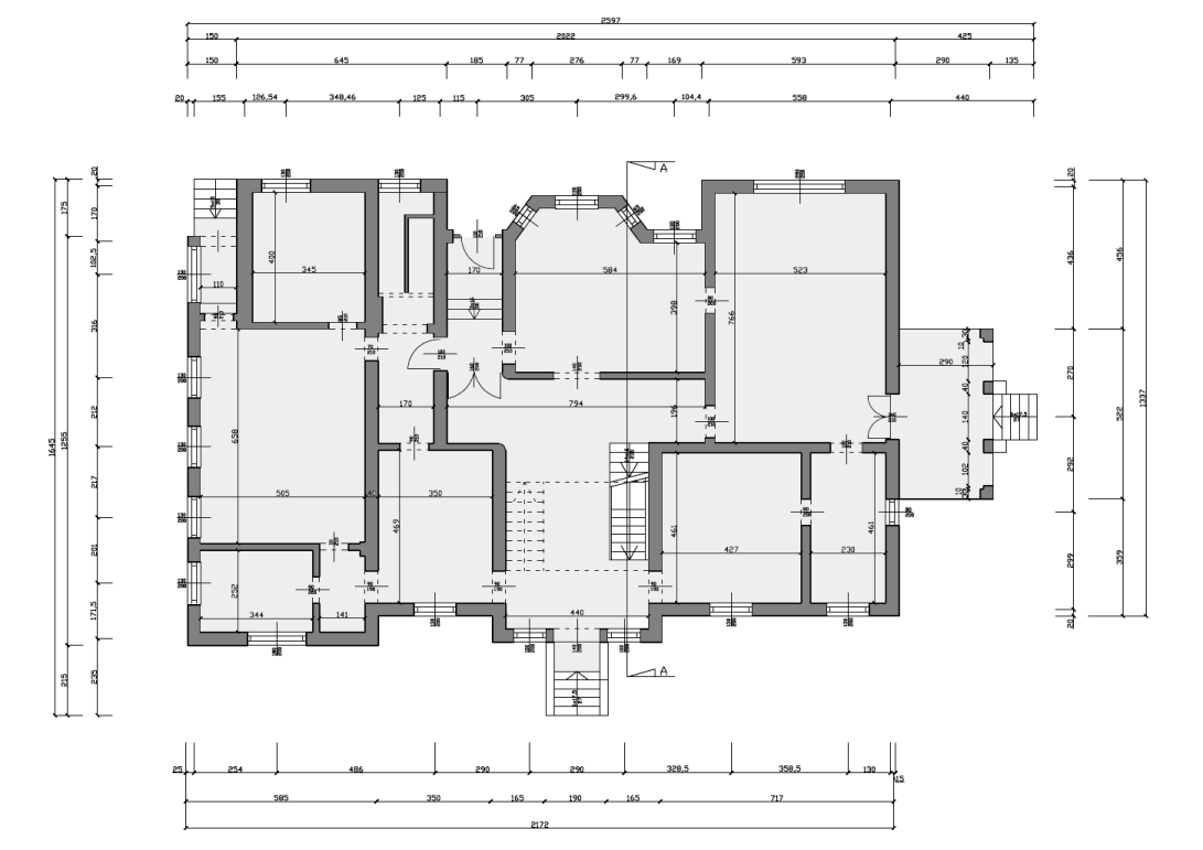
Inwentaryzacja zamku w Łące Prudnickiej, 2008-2009
(powierzchnia ok. 3,000 m²)
(uzupełnione o projekt koncepcyjny przekształcenia obiektu)

Inwentaryzacja hotelu w Zamościu, 2009
(powierzchnia ok. 3,000 m²)
(uzupełnione o projekt sal konferencyjnych w podziemiu)

Inwentaryzacja Starej Apteki w Rydułtowach, 2010
(powierzchnia ok. 500 m²)

Inwentaryzacja lokalu gastronomicznego, 2017
(powierzchnia 80 m²)
(uzupełnione o wykaz technologii kuchennej)

Inwentaryzacja BIM podwórza i budynków gospodarczych
przy planowanym obszarze rekreacji w Bydgoszczy, 2017
(powierzchnia terenu wraz z budynkami ok. 1,280 m²)

materiały i narzędzia:
- Autodesk AutoCAD
- Graphisoft ArchiCAD
- inwentaryzacja fotograficzna (katalog fotografii cyfrowych)
- dokumentacja urzędowa (format PDF; wydruk i skład zgodnych z normatywami dokumentów w standardowych formatach A3 / A4 i rysunków wielkoformatowych A0 / A1 / A2)
